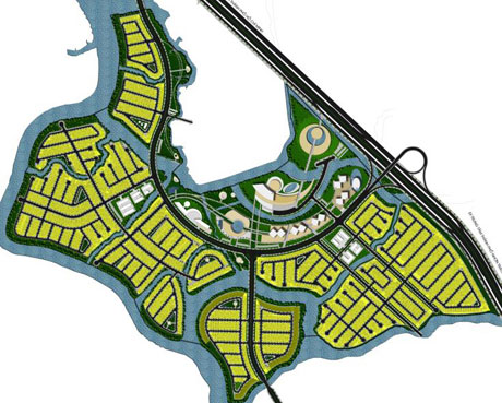
KHU DÂN CƯ SINH THÁI VÀ NHÀ VƯỜN SEN VIỆT
– Chủ đầu tư: Tập đoàn Phú Mỹ Hưng
– Địa điểm: Đồng Nai
– Quy mô: 212ha
– Năm thực hiện: 2025
– Dịch vụ: Khảo sát thủy văn phục vụ thiết kế cải tạo nước phục vụ hoạt động ngoài trời.
– Chủ đầu tư: Tập đoàn Phú Mỹ Hưng
– Địa điểm: Đồng Nai
– Quy mô: 212ha
– Năm thực hiện: 2025
– Dịch vụ: Khảo sát thủy văn phục vụ thiết kế cải tạo nước phục vụ hoạt động ngoài trời.