Skip to content
    • Contact
    • 08:00 - 17:30
    • 093 73 166 73
  • EnglishVietnamese
  • EnglishVietnamese
CÔNG TY CỔ PHẦN TƯ VẤN XÂY DỰNG LONG KHANGCÔNG TY CỔ PHẦN TƯ VẤN XÂY DỰNG LONG KHANG
    • Trang chủ
    • Công ty
    • Dịch vụ
    • Dự án
    • TIN TỨC
    • Liên hệ

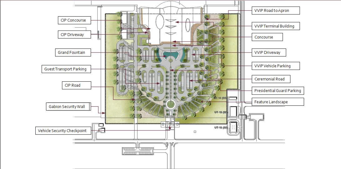
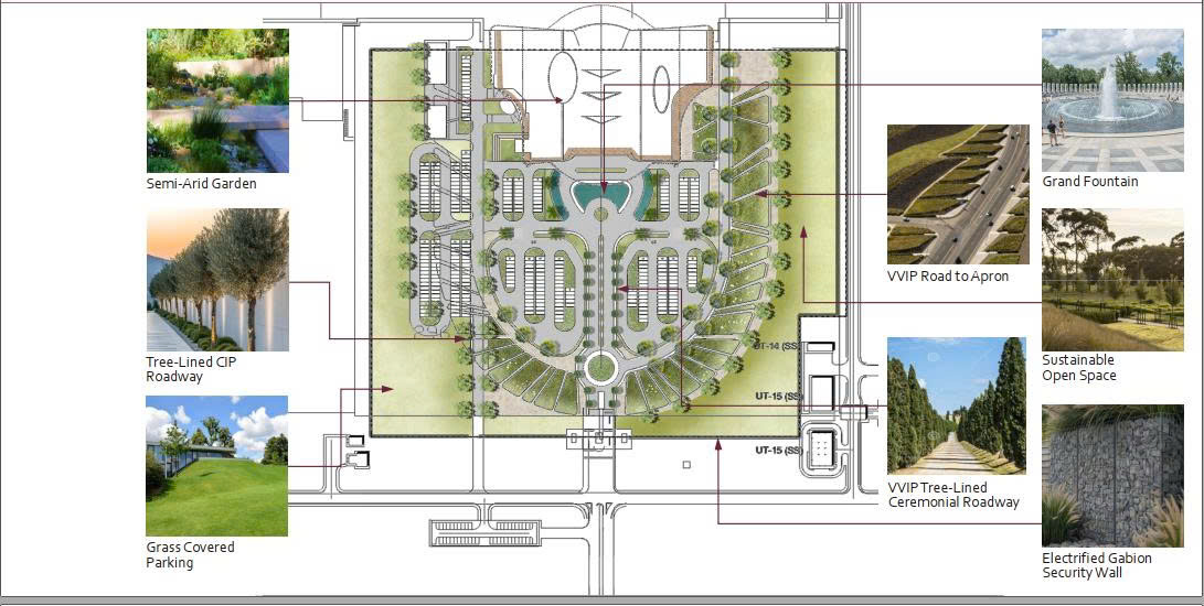
VVIP EXTERNAL

– Chủ đầu tư: CÔNG TY TNHH CPG VIỆT NAM

– Địa điểm: Libya

– Quy mô: khoảng 10ha

– Năm thực hiện: 2025

– Dịch vụ: Thiết kế hạ tầng kỹ thuật bên ngoài nhà ga

Danh mục
  • Chủ đầu tư
    • AAN
    • An Gia
    • belgroup
    • Bệnh viện Chấn thương Chỉnh hình
    • BQLDA TX Bến Cát
    • CNT
    • CPG Consultant
    • Dat xanh
    • DBFS
    • Dha
    • Empire city
    • First Green
    • Gamuda
    • Hiệp Hòa
    • Hoàn cầu Nha Trang
    • hong duc
    • hudeco
    • Hung phu
    • Hung Thinh
    • IDICO
    • Junglím
    • Khải Hoàn Land
    • Khang dien
    • Khởi Nguyên
    • Kim Oanh
    • kita
    • legamex
    • Lotte
    • Masteri home
    • MIK Group
    • n h o
    • Nam Rạch Chiếc
    • NHS
    • Onehub sai gon
    • Phu my hung
    • T&T
    • Tây Hồ
    • Thaison Group
    • Thành Phương real
    • Thịnh Phát
    • Thuận lợi
    • Tien phuoc
    • Trường Quốc tế Tas
    • TwoG
    • Van thinh phat
    • VGC
    • Vinaliving
    • Vĩnh Quang
  • Dự án
    • Đầu nối
    • Khảo sát
    • Pháp lý
    • Quy hoạch
    • Thiết kế
  • Địa điểm
    • An Giang
    • Bắc Giang
    • Bình Dương
    • Bình Định
    • Bình phước
    • Bình Thuận
    • Cà Mau
    • Cần Thơ
    • Đồng Nai
    • Đồng Tháp
    • Gia Lai
    • Khánh Hòa
    • Lâm Đồng
    • Long An
    • Nha Trang
    • Ninh Thuận
    • Quảng Ninh
    • Sóc Trăng
    • TPHCM
    • Vĩnh Long
    • Vũng Tàu
  • Hung Thinh

CÔNG TY CỔ PHẦN TƯ VẤN XÂY DỰNG LONG KHANG

Địa chỉ: VP-6.05 tầng 6, ST. Moritz building - 1014 Phạm Văn Đồng, Phường Hiệp Bình Chánh, Thành phố Thủ Đức, TP.HCM.
Hotline: 093 73 166 73
Email: Lkc@longkhang.com.vn
Website: longkhang.com.vn
    Số người online: 0 | Số lượt truy cập hôm nay: 16673 | Tổng số lượt truy cập: 48478
    Thiết Kế Website Bởi Duy Anh Web
    • Trang chủ
    • Công ty
    • Dịch vụ
    • Dự án
    • TIN TỨC
    • Liên hệ
    Zalo
    Phone

    Đăng nhập

    Quên mật khẩu?